Tesla has always been known for green-lighting wild business ideas, but the latest thing they’re cooking up (no pun intended) is next level. After teasing the idea of it on Twitter back in 2018 and filing a logo trademark for it in 2021, the automaker has just filed an application with the Los Angeles Department of City Planning to build a charging station with its own diner and drive-in movie theater.
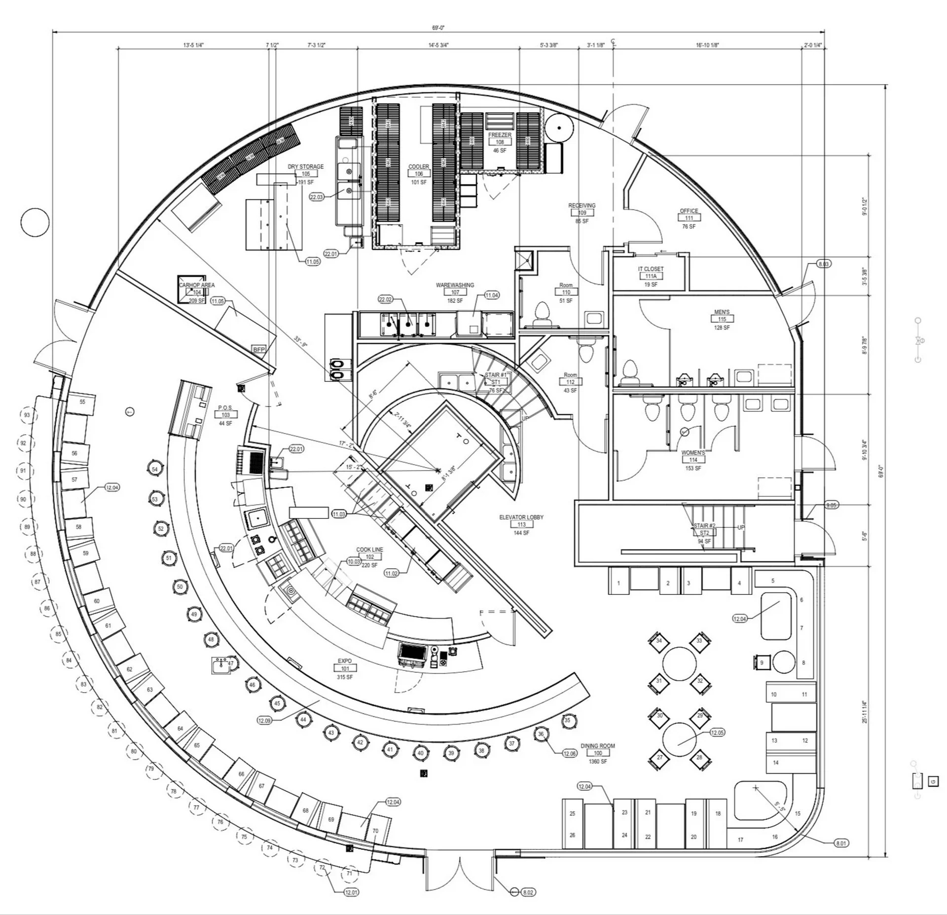
According to the filing, which was first discovered by Electrek, the proposed name of the project is the “Tesla Supercharger Diner & Drive-in”. The location they’re looking to use, which is on a corner on West Santa Monica Boulevard, is currently occupied by a restaurant and its parking lot. The plan would be to demolish the existing building, remove the trees, grade the land, then build their new facilities over an area of roughly half an acre.
Read More: Teslas Will Soon Automatically Close Parked Car Windows In The Rain

A top-down view of the proposed site shows the diner in the bottom right corner, the movie screens on the top and left edges, and the chargers around the perimeter of the lot.
Related: Tesla “CYBERBACKPACK” Trademark Filing Hints At The Automaker Potentially Selling A Fan-Made Design
The charging station will be comprised of a whopping 34 spaces consisting of 29 Superchargers and 5 Level 2 chargers. The diner will be a two-story design consisting of a 3,800-square-foot enclosed lower level and a 5,500-square-foot rooftop area for seating and food preparation.
The drive-in movie theater will have 2 screens visible to those charging their car or eating at the restaurant, and they’ll play roughly 30-minute movies to coincide with the charging time of the Superchargers. The screens will be positioned on the north and west boundaries of the property for maximum visibility, and they’ll be framed by a wall of bamboo plants to minimize distractions.
Tesla also applied for permission to operate the charging station and restaurant 24 hours a day, while the movie theater will only be open from 7 AM-11 PM to adhere to the city’s “Commercial Corner” standards.



